C a s a S E L
Ubicada en la Ciudad de México, en Coyoacán, se trata de un proyecto de remodelación e intervención de una casa construida en los años 70s.
La propuesta se concentra en adecuar un partido arquitectónico que ya no era capaz de resolver las necesidades de sus nuevos habitantes.





Remodelación.
Con la convicción de entregar luz natural a todos los espacios y a su vez interactuar directamente con sus jardines, donde se encuentra un árbol de pirúl de más de 80 años, se ha trabajado en la conservación o ampliación de la mayoría de los vanos existentes en fachada compuestos por arcos falsos, transformados y reordenados mediante cancelerías de acero en ángulos rectos, que pueden ser abiertas, fomentando así una relación directa del espacio interior hacia el jardín.
Al interior se trabajó un proyecto de reestructuración, eliminando muros y generando un espacio claro y de planta libre que redefine las actividades de estar, comer y cocinar.







Intervención
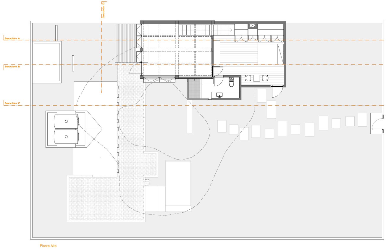
La intervención consiste en la reactivación de la azotea del primer nivel a partir de la construcción de una escalera/guardado que conduce a un Solario/Invernadero utilizado como vestíbulo, una pausa a la recamara principal. Un nuevo baño acompaña a este espacio.
Reduciendo un cuarto de lavado a lo indispensable, se genera un patio y una nueva fachada ventilada por medio de una celosía fabricada en concreto y barro. Este patio también dota de luz natural y ventila a la actividad de cocinar.


Con el objetivo de generar un contraste contundente sobre lo remodelado y lo intervenido decidimos utilizar concreto armado cimbrado con petates (fibra de planta de palma), grabando las texturas de los tejidos vegetales mediante módulos tejidos a mano y por artesanos expresamente para la intervención.
Esta acción se vuelve coherente pensando en que sus nuevos habitantes son una joven familia de científicos amantes de las plantas.
La necesidad de una cisterna, dió paso a proponer un espejo de agua con la idea de reflejar al viejo Pirúl.












Acabados en tonalidades neutras conforman los interiores de la casa, siempre en convivencia con el jardín.













Publicación en Archdaily click aquí
Publicación en Divisare click aquí
Nombre de proyecto: Casa S E L Diseño: CampoTaller Arq. Humberto R. Moreno Hernández. Colaborador: Arq. Carlos Jair Odriozola. Construcción: CampoTaller. Ingeniería estructural: Arq. Ricardo Camacho. Albañilería: Plácido Camacho. Cancelaría: Ibarra herrerías. Eléctrica: Daniel Peña. Hidrosanitaria: Ismael Reyes. Carpinterías: Fidel Santiago. Año de realización: 2015/2016 M2 intervenidos:220 Créditos Fotográficos: ©Moritz Bernoully ©CampoTaller